

Flat/Apartment
£550,000
Details:
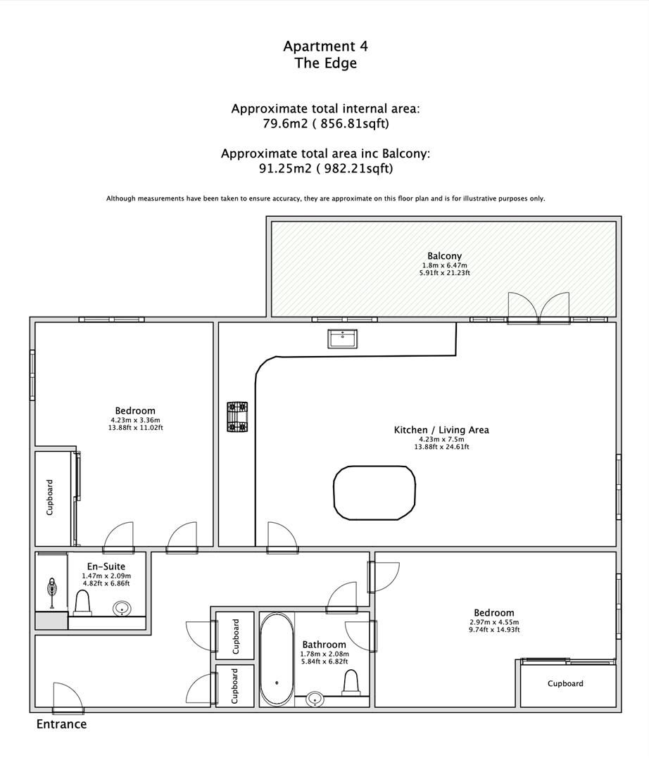
A superb contemporary two double bedroom / two bathroom first floor apartment with a generously sized outside terrace forming part of The Edge, a stylish development of luxury apartments constructed by Elysian Homes boasting premium quality appointments and the ultimate in location convenience. The Edge is set within just a minute's walk (0.2 miles) of a range of doorstep amenities at both Tubbs Hill and Station Parade, as well as Sevenoaks mainline rail station with its fast and frequent service to London Bridge / Charing Cross in less than thirty minutes. A wider array of all shopping, social and leisure facilities can be found in the High Street (0.7 miles) including beautiful Knole Park.
Under floor heated throughout, the well presented and generously proportioned accommodation comprises a welcoming entrance hall with storage, living space with access to the outside terrace, a beautiful bespoke kitchen / breakfast area complete with fully integrated appliances, spacious master bedroom with ensuite shower room, second double bedroom with Jack and Jill access to the main bathroom. The property also provides allocated & secure underground parking. Available with no onward chain, your internal viewing comes highly recommended in order to fully appreciate all this comprehensive apartment has to offer and its excellent location.
ENTRANCE HALL
Tiled Floor as laid, entry phone system, storage and...
Alternatively, you can use our online system to book a viewing for this property.